












































小区嘉和城 装修暂无数据
产权性质暂无数据 年代 2010年建
浏览量632人看过 转发量0人转发 关注0人关注
| 绿 化 率 | 31 | 有无电梯 | 有电梯 | 房源类型 | 停车位 | 1336 | ||
| 物业费 | 2.50 | 总户数 | 1190 | 容积率 | 3 | 挂牌时间 | 2020-07-16 | |
| 产权年限 | 70年 | 物业公司 | 深圳万科物业 | |||||
| 地址 | 昆仑大道995号嘉和城 | |||||||
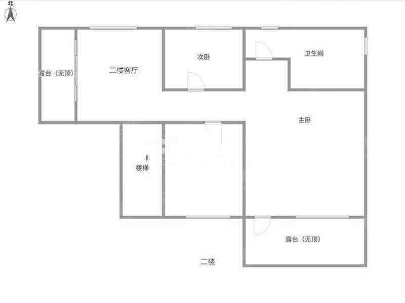
装修描述还物业是毛坯房源,任意你装修,没有改动过户型,标准洋房楼中楼
核心优点别墅区内的洋房,物业费仅仅9毛一平就可享受到别墅的尊贵物业管理模式,本身户型极好,带3大露台,在小区中间位置,看湖景
交通出行出门就是昆仑大道,有公交车直接东站与南湖公园,也有公交车直达朝阳广场,地铁五号线!
周边配套东站商圈,周边有绿地城,华夏院子,嘉和城自带双天桃学校,十公交环湖健身跑道





























